產品概述
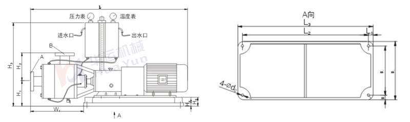
根據乳化石灰漿專用泵使用場合的特點,采用機械密封和填料密封兩種形式進行密封,直接通入潔凈的自來水,具有密封性好,無泄漏、使用壽命長,更換方便等諸多有點。
H |
II |
E |
XXX- |
X |
|||||
公司代號 |
表示連續式 |
產品類(三級帶托架型) |
產品型號 |
驅動功率 |
型號 |
電機功率(KW) |
轉速(r/min) |
切線速度(m/s) |
流量(H?0)(r/min) |
揚程(m) |
揚程(m) |
揚程(m) |
||||||||
HIIE415 |
11 |
2930 |
21 |
11 |
20 |
DN65 |
DN50 |
||||||||
HIIE425 |
22 |
2930 |
21 |
20 |
20 |
DN80 |
DN65 |
||||||||
HIIE435 |
37 |
2930 |
21 |
36 |
20 |
DN100 |
DN80 |
||||||||
HIIE450 |
55 |
2930 |
20 |
48 |
20 |
DN100 |
DN80 |

型號\尺寸 |
L |
L1 |
L2 |
L3 |
B1 |
B2 |
B3 |
W |
H1 |
H2 |
H3 |
H4 |
H5 |
d0 |
法蘭A |
法蘭B |
kg |
||||||||||||||||||
HIIE415 |
1503 |
35 |
950 |
1020 |
30 |
360 |
420 |
387 |
220 |
202 |
573 |
12 |
50 |
20 |
65 |
50 |
279 |
||||||||||||||||||
HIIE425 |
1634 |
40 |
1080 |
1160 |
40 |
420 |
500 |
412 |
270 |
230 |
603 |
20 |
80 |
22 |
80 |
65 |
407 |
||||||||||||||||||
HIIE435 |
1905 |
50 |
1300 |
1400 |
50 |
460 |
580 |
446 |
300 |
248 |
693 |
20 |
90 |
24 |
100 |
80 |
543 |
||||||||||||||||||
HIIE450 |
2077 |
70 |
1480 |
1620 |
70 |
480 |
620 |
463 |
360 |
270 |
723 |
20 |
100 |
26 |
100 |
80 |
733 |
合肥華運機械制造有限公司生產的制糖業乳化石灰漿專用泵是一種集輸送和高剪切乳化為一體的特殊泵,乳化石灰漿專用泵的應用,克服了糖廠多年來因石灰漿難以細化,從而引起后反應,導致蔗汁中和及澄清汁PH值難以控制,最終影響產品質量的現象
根據糖廠的一般工藝來看,石灰乳制備皆采用石灰消和機將生石灰在消和機轉筒內加熱水消和為石灰乳,經石灰乳流槽流入若干個帶攪拌器的石灰乳儲桶(主要起沉淀和除砂作用),然后再用普通石灰乳輸送泵(一般均采用離心泵、泥漿泵和柱塞泵)輸送供蔗汁預灰中和崗位使用,這樣的石灰乳顆粒通常都在1~3mm左右,且含細砂較多,給以下道工序帶來不少的問題:
一、多數糖廠均裝有預灰PH值、中和PH值和清汁PH值自控設備,他們的特點是價格高、控制穩,但它們對石灰乳質量的要求也很高。像上述顆粒大、含砂量多的石灰乳則會堵塞石灰乳管道及損壞自控設備的主要部件致自控失靈。
二、顆粒大的石灰乳后反應嚴重,導致中和PH值和清汁PH值難以控制穩定,最終影響產品的質量。
三、顆粒大、含砂多的石灰乳給澄清、煮糖工段的設備帶來嚴重的積垢,影響傳熱,增加汽耗和通洗罐的費用,一些積垢帶入糖產品中導致不溶于水的雜志超標。
由此可見,離心泵、泥漿泵、柱塞泵只是一個簡單的輸送泵,它們無法改變石灰乳顆粒的大小,解決不了上述存在的問題。如果用上合肥華運新開發的,擁有多項國家專利的石灰漿專用泵(揚程可達30M),則不僅能完成石灰乳的輸送,而且能在輸送過程中將1~3mm的石灰乳顆粒剪切成0.06~0.08mm的石灰乳,直接用于蔗汁預灰和中和,較好地解決了上述多種問題,為預灰、中和及澄清PH值的穩定控制提供了保障,確保了糖品質量的穩定和提高。
在中國廣西、云南、海南、廣東、福建和內蒙一些糖廠的應用中,石灰漿專用泵不僅提高了石灰漿乳化工作效率,而且大大提高了石灰乳的質量,從而使糖品質量更加穩定。此泵是制糖業石灰乳化的一次革命,它與普通的石灰乳輸送泵(離心泵、泥漿泵、柱塞泵)絕非同一概念的泵,它是能給制糖業關鍵工序石灰漿乳化帶來高效率、高品質的泵。現在,許多糖廠普遍使用預灰、中和、清汁PH值自動控制等高精密設備,國內外糖品質量的要求愈來愈高,對石灰乳的質量要求也就愈來愈高。所以采用本公司生產的石灰漿專用泵取代普通石灰乳輸送泵是制糖企業的很好選擇。
石灰乳的生產過程:首先將外購的生石灰(CaO)倒進石灰消和機轉筒內,然后加入熱水(H20),隨著轉筒不斷轉動和熱水連續加入,石灰乳不斷生成并流出。反應式為:CaO+H20=Ca(OH)2。
從許多糖果廠的石灰乳化工序來看,因購進的生石灰均存在少不透(石灰塊中心未燒透)和燒過熟(石灰塊外部成黃褐色)的現象,此外,還有許多細砂的等雜質。上述塊狀生石灰與水反應的速度甚慢,在消和機轉筒內無法消和完全就從轉筒出口輸出,造成石灰大量浪費。同時,這樣生成的石灰乳顆粒直徑均在1~3mm之間,且含大量細砂,給下一道工序帶來堵塞石灰乳管道、磨損PH值自控設備、引起后反應、增加箱罐積垢、增加能耗最終影響產品質量等問題。
為了解決上述問題,合肥華運專門針對制糖企業所用的石灰乳顆粒大、難以細化且含細砂的特性,開發生產了制糖業乳化石灰漿專用泵,獲得了多項國家專利,通過該泵將石灰漿顆粒剪切細化到0.06~0.08mm,從而使之在預灰、中和的反應更迅速、更充分,反應式為:Ca(OH)2+SO2=CaSO3 +H2O:3Ca(OH)2+2H3PO4=Ca3(PO4) +6H20
這樣生成的亞硫酸鈣和磷酸鈣均是沉淀物,它們吸附蔗汁中的色素和非糖雜質沉淀,通過吸濾機或壓榨機將雜質除去,從而提高了清汁與混合汁的純度差,確保了澄清汁的質量。在亞硫酸法制糖廠中,石灰乳是主要澄清劑,它的質量高低直接關系到糖產品質量的好壞。所以,選用乳化石灰漿專用泵,提高石灰乳的質量,在制糖業中是至關重要的。
E-mail:hyjixie@hyjixie.com
工廠地址:合肥市雙鳳經濟開發區金海路25號
營銷總部地址:合肥市金寨路美第陽光大廈13層
合肥華運機械制造有限公司 版權所有 Copyright ? 2020